THI CÔNG CỬA NHÔM KÍNH CÓ CẦN BẢN VẼ CHI TIẾT KHÔNG? GIẢI ĐÁP CHO GIA CHỦ LẦN ĐẦU XÂY NHÀ
THI CÔNG CỬA NHÔM KÍNH CÓ CẦN BẢN VẼ CHI TIẾT KHÔNG? GIẢI ĐÁP CHO GIA CHỦ LẦN ĐẦU XÂY NHÀ
Mục lục bài viết
- 1. Thi công cửa nhôm kính là gì và vai trò trong công trình nhà ở
 - 2. Bản vẽ chi tiết cửa nhôm kính là gì?
 - 3. Thi công cửa nhôm kính có cần bản vẽ chi tiết không?
 - 4. Bài học thực tế: Không có bản vẽ chi tiết, rủi ro sẽ tìm đến bất ngờ
 - 5. Khi nào gia chủ cần bản vẽ chi tiết cửa nhôm kính?
 - 6. Ai là người chịu trách nhiệm triển khai bản vẽ chi tiết cửa nhôm kính?
 
Lần đầu xây nhà, bất kỳ gia chủ nào cũng sẽ trải qua cảm giác háo hức xen lẫn áp lực. Có quá nhiều thứ phải cân nhắc: từ bản thiết kế tổng thể, vật liệu xây dựng, đến từng chi tiết như cửa ra vào, cửa sổ hay vách kính. Trong đó, hạng mục cửa nhôm kính – tuy chiếm tỷ trọng nhỏ về diện tích – lại có ảnh hưởng rất lớn đến cả thẩm mỹ, công năng lẫn tiến độ thi công của công trình.
Nhiều người thường cho rằng, thi công cửa nhôm kính chỉ cần đo kích thước rồi chọn mẫu là xong. Tuy nhiên, thực tế cho thấy: rất nhiều công trình đã phải đục phá tường, sửa lại cửa, thậm chí làm lại hoàn toàn chỉ vì thiếu một bản vẽ chi tiết ngay từ đầu.

Đông Phương Plus hỗ trợ dựng bản vẽ miễn phí trước khi thi công (Nguồn: Internet)
Bản vẽ chi tiết cửa nhôm kính không chỉ giúp định hình rõ các thông số kỹ thuật, mà còn là cơ sở để đảm bảo sự đồng bộ về thẩm mỹ và tiến độ trong toàn bộ quá trình xây dựng. Đây là một phần không thể thiếu, đặc biệt đối với những gia chủ lần đầu xây nhà và chưa có kinh nghiệm xử lý các tình huống kỹ thuật thực tế.
Bài viết này sẽ giúp bạn hiểu rõ vì sao bản vẽ chi tiết là điều bắt buộc khi thi công cửa nhôm kính, đồng thời cung cấp các dẫn chứng thực tế và hướng dẫn cần thiết để bạn chủ động hơn trong quá trình làm việc với nhà thầu hoặc đơn vị thi công.
1. Thi công cửa nhôm kính là gì và vai trò trong công trình nhà ở
Thi công cửa nhôm kính là quá trình sản xuất và lắp đặt các bộ cửa được cấu thành từ nhôm định hình và kính cường lực, thường áp dụng cho các vị trí như cửa chính, cửa sổ, cửa ban công, cửa thông phòng hoặc vách kính cố định. Tùy vào thiết kế tổng thể của ngôi nhà, gia chủ có thể lựa chọn nhiều kiểu cửa như: cửa mở quay, cửa lùa trượt, cửa xếp trượt, cửa hất, hoặc cửa kết hợp nhiều chức năng.
Điểm nổi bật của cửa nhôm kính là tính thẩm mỹ hiện đại, khả năng lấy sáng tự nhiên, tiết kiệm diện tích mở và dễ dàng bảo trì. Đối với nhà phố, biệt thự hay công trình có mặt tiền lớn, cửa nhôm kính còn giúp tạo không gian mở rộng rãi và sang trọng.
Tuy nhiên, để đạt được hiệu quả tối ưu, việc thi công cửa nhôm kính cần được chuẩn bị kỹ từ đầu. Bất kỳ sai lệch nào trong quá trình đo đạc, sản xuất hoặc lắp đặt đều có thể ảnh hưởng đến độ an toàn, độ bền cũng như tính đồng bộ của toàn bộ công trình. Chính vì vậy, bản vẽ chi tiết đóng vai trò như một bản kế hoạch thi công chuẩn xác, giúp hạn chế rủi ro và kiểm soát chất lượng tốt hơn.
2. Bản vẽ chi tiết cửa nhôm kính là gì?
Bản vẽ chi tiết cửa nhôm kính là tài liệu thể hiện toàn bộ các thông số kỹ thuật, cấu tạo và cách bố trí của từng bộ cửa trong một công trình cụ thể. Đây là bản vẽ được thiết kế riêng biệt cho từng loại cửa – có thể là cửa chính, cửa sổ, vách ngăn kính – sao cho phù hợp với kích thước ô chờ, thiết kế kiến trúc, cũng như yêu cầu sử dụng của gia chủ.
Thông thường, một bản vẽ chi tiết cửa nhôm kính sẽ bao gồm các nội dung chính như:
- Kích thước cụ thể (rộng, cao, độ dày khung và kính)
 - Loại nhôm sử dụng (hệ nhôm, độ dày, mã màu)
 - Loại kính (kính cường lực, kính hộp, kính phản quang...)
 - Cấu tạo cửa (số cánh, hướng mở, kiểu lắp đặt)
 - Phụ kiện đi kèm (tay nắm, bản lề, khoá, chốt...)
 - Vị trí lắp đặt trên mặt bằng tổng thể
 
Bản vẽ này không chỉ được sử dụng trong giai đoạn sản xuất và gia công cửa mà còn là tài liệu kiểm tra quan trọng trong quá trình thi công và nghiệm thu công trình. Đây là công cụ để các bên – từ chủ đầu tư, kiến trúc sư, đến đơn vị sản xuất và đội thợ thi công – cùng làm việc dựa trên một tiêu chuẩn chung, đảm bảo không có sai lệch giữa thiết kế và thực tế lắp đặt.
3. Thi công cửa nhôm kính có cần bản vẽ chi tiết không?
Câu trả lời là: có, và thậm chí là bắt buộc nếu gia chủ muốn công trình được thực hiện đúng kỹ thuật, đúng tiến độ và đúng như mong đợi ban đầu. Dưới đây là những lý do cụ thể:

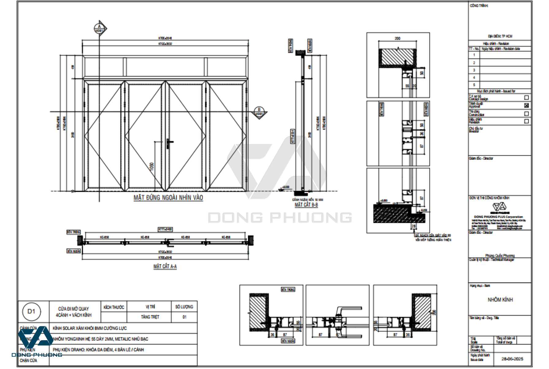
Bản vẽ chi tiết là “chìa khóa” đảm bảo cửa nhôm kính lắp đúng ngay từ đầu (Bản vẽ chi tiết cửa đi 4 cánh)
Giúp xác định chính xác kích thước và thông số kỹ thuật
Khi không có bản vẽ, việc đo đạc trực tiếp tại công trình thường tiềm ẩn rủi ro sai số. Chỉ cần lệch vài milimet cũng có thể khiến cửa không vừa với ô chờ, phải cắt sửa lại hoặc thậm chí phải gia công lại toàn bộ bộ cửa. Bản vẽ giúp chuẩn hóa thông tin ngay từ đầu và là cơ sở để gia công chính xác tuyệt đối.
Đảm bảo đồng bộ với thiết kế kiến trúc tổng thể
Cửa là một phần trong hệ thống kiến trúc và nội thất chung của ngôi nhà. Nếu không có bản vẽ, rất dễ xảy ra tình trạng cửa không cùng tông màu, kiểu dáng hoặc vị trí mở không hợp lý với không gian. Bản vẽ chi tiết sẽ giúp bạn hình dung được toàn bộ sự tương thích giữa cửa và các hạng mục liên quan như sàn, trần, tường, hệ thống điện nước...
Tránh phát sinh chi phí và thời gian thi công
Việc phải lắp lại hoặc chỉnh sửa vì sai thông số gây tốn kém không chỉ ở phần vật tư mà còn kéo dài thời gian thi công. Với bản vẽ chi tiết, mọi thứ được xác định rõ ràng ngay từ đầu, giúp tiến độ được kiểm soát và ngân sách không bị đội lên ngoài kế hoạch.
Là căn cứ pháp lý trong hợp đồng thi công
Bản vẽ chi tiết là một phần không thể thiếu trong hợp đồng giữa gia chủ và đơn vị thi công. Khi có tranh chấp xảy ra, đây là tài liệu quan trọng để xác định trách nhiệm và chất lượng thực hiện. Không có bản vẽ, các thỏa thuận sẽ trở nên cảm tính và khó chứng minh bằng chứng cứ rõ ràng.
Giúp dễ dàng kiểm tra, nghiệm thu và bảo hành
Bản vẽ là cơ sở để đối chiếu trong quá trình thi công, kiểm tra từng hạng mục và nghiệm thu sau khi hoàn thiện. Ngoài ra, khi xảy ra sự cố trong quá trình sử dụng, bản vẽ sẽ là tài liệu giúp đơn vị bảo hành xác định vấn đề nhanh chóng và chính xác hơn.
4. Bài học thực tế: Không có bản vẽ chi tiết, rủi ro sẽ tìm đến bất ngờ
Để hình dung rõ hơn về tầm quan trọng của bản vẽ chi tiết trong thi công cửa nhôm kính, hãy cùng điểm qua hai trường hợp điển hình – một thất bại do thiếu bản vẽ và một thành công nhờ chuẩn bị đầy đủ từ đầu.

Xây nhà lần đầu? Đừng bỏ qua bước lên bản vẽ chi tiết cho cửa nhôm kính (Nguồn: Internet)
Trường hợp 1: Mất thêm 3 triệu chỉ vì thiếu bản vẽ
Anh Khoa (ngụ tại quận Thủ Đức, TP.HCM) xây nhà phố 3 tầng, lựa chọn cửa nhôm kính cho mặt tiền tầng trệt. Anh không yêu cầu bản vẽ chi tiết mà chỉ mô tả miệng với bên thi công: “Cửa lùa 4 cánh, màu ghi xám, trượt hai bên là được.”
Khi đến giai đoạn lắp đặt, đội ngũ kỹ thuật mới phát hiện:
- Kích thước cửa lệch 5cm so với ô chờ xây thô
 - Hướng trượt không phù hợp với không gian nội thất bên trong
 - Màu nhôm hoàn thiện lệch tông với cửa ban công tầng 2
 
Kết quả là anh Khoa phải đập lại tường để chỉnh sửa, thay ray trượt và gia công lại toàn bộ khung cửa. Chi phí phát sinh hơn 3 triệu đồng, chưa kể mất thêm 5 ngày thi công và ảnh hưởng tiến độ hoàn thiện nhà.
Trường hợp 2: Có bản vẽ chi tiết – lắp đặt nhanh, chuẩn từng milimet
Chị My (ngụ tại Biên Hòa, Đồng Nai) thi công nhà 2 tầng với tổng cộng 7 bộ cửa nhôm kính. Ngay từ khâu thiết kế, chị đã yêu cầu đơn vị thi công lên bản vẽ chi tiết cho từng loại cửa.
Nhờ có bản vẽ rõ ràng, quá trình sản xuất và thi công diễn ra mượt mà:
- Xưởng sản xuất cắt nhôm và kính đúng thông số ngay từ đầu
 - Đội lắp đặt chỉ cần mang đến công trình và lắp theo đúng bản vẽ
 - Mọi vị trí cửa đều khít với ô chờ, không cần điều chỉnh gì thêm
 
Toàn bộ quá trình hoàn thiện hệ cửa diễn ra nhanh hơn dự kiến 2 ngày. Chị My không những tiết kiệm được chi phí nhân công mà còn hoàn toàn yên tâm về độ đồng bộ giữa cửa với thiết kế tổng thể.
Kết luận từ hai tình huống thực tế:
Sự khác biệt lớn giữa hai trường hợp chỉ nằm ở việc có hay không có bản vẽ chi tiết. Trong khi một bên phải tốn thêm tiền và thời gian để khắc phục sai sót, thì bên còn lại chủ động kiểm soát được tiến độ và chất lượng. Đây chính là bài học thực tế rõ ràng nhất cho mọi gia chủ đang chuẩn bị xây nhà: đừng coi nhẹ bản vẽ cửa – đó là phần không thể thiếu nếu bạn muốn công trình hoàn thiện đúng như kỳ vọng.
5. Khi nào gia chủ cần bản vẽ chi tiết cửa nhôm kính?
Không phải mọi trường hợp đều bắt buộc phải có bản vẽ chi tiết, nhưng đối với những công trình nhà ở hiện đại, số lượng cửa nhiều, thiết kế đa dạng thì bản vẽ là điều không thể thiếu. Dưới đây là các trường hợp cụ thể giúp gia chủ xác định khi nào cần chuẩn bị bản vẽ cửa nhôm kính:

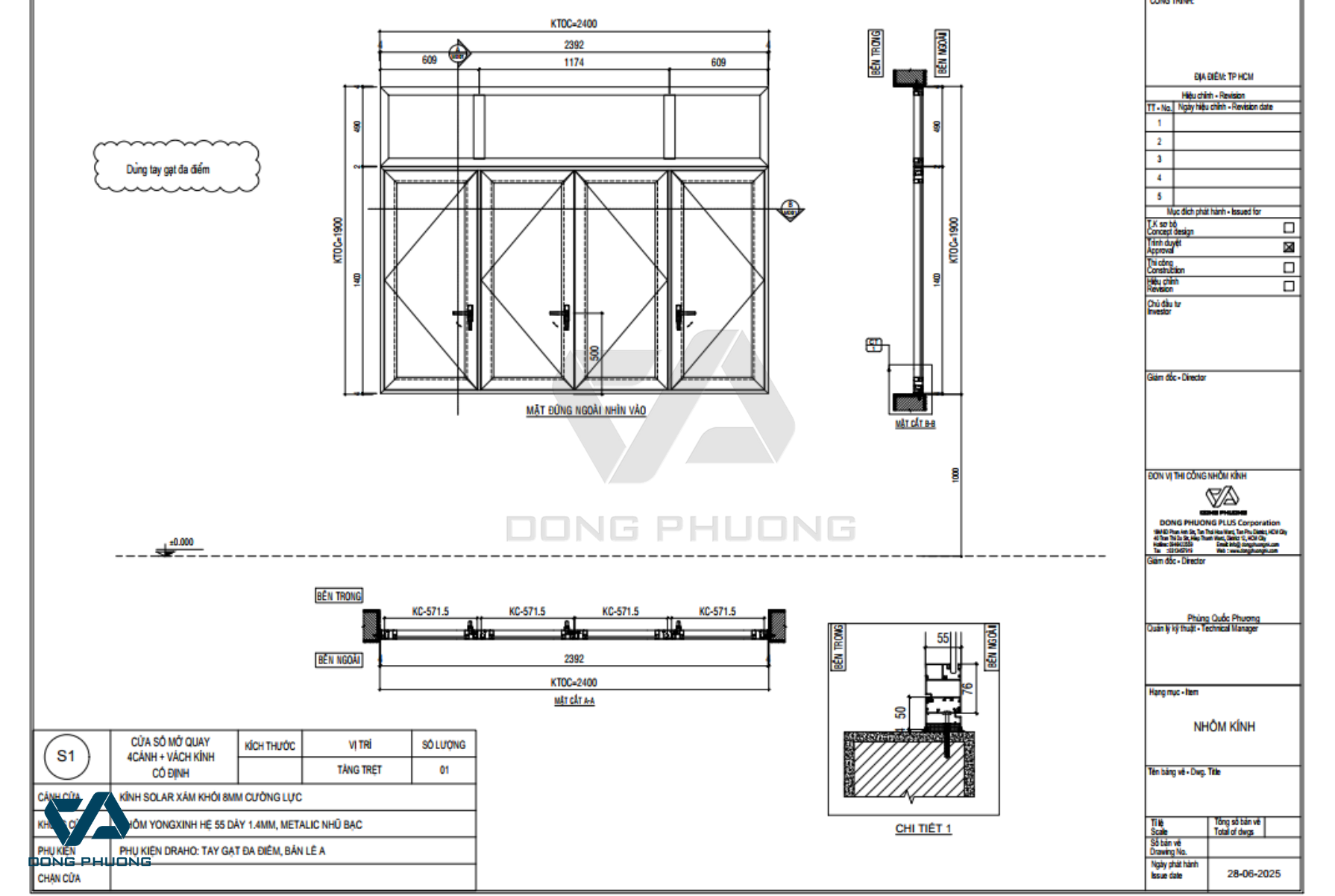
Mỗi vị trí cửa cần một bản vẽ riêng để đảm bảo tính chính xác tuyệt đối (Bản vẽ chi tiết cửa sổ)
Xây dựng mới toàn bộ công trình
Với các ngôi nhà mới xây từ móng, mọi thứ đều bắt đầu từ con số 0. Khi đó, việc lên bản vẽ cửa nhôm kính đồng bộ với thiết kế kiến trúc ngay từ đầu là cần thiết để đảm bảo thống nhất tổng thể, tránh sửa chữa về sau.
Lắp đặt nhiều loại cửa ở nhiều vị trí
Nếu công trình của bạn có cửa chính, cửa sổ, cửa ban công, vách kính cố định, mỗi loại ở nhiều tầng hoặc hướng khác nhau, việc sử dụng bản vẽ sẽ giúp bạn kiểm soát tốt kích thước, kiểu dáng, hệ nhôm, loại kính và phụ kiện cho từng vị trí cụ thể.
Sử dụng hệ cửa phi tiêu chuẩn hoặc yêu cầu thiết kế riêng
Trong các trường hợp gia chủ muốn dùng cửa lùa khổ lớn, cửa xếp trượt, cửa slim viền siêu mảnh hoặc phối kính đặc biệt (kính hộp, kính nan đồng…), thì bản vẽ chi tiết là bắt buộc để đảm bảo độ chính xác và tính khả thi khi thi công.
Cải tạo, mở rộng nhưng giữ lại kiến trúc cũ
Với những công trình cải tạo, nếu bạn cần thay cửa mà vẫn giữ kết cấu cũ, bản vẽ giúp đo vẽ chính xác, tránh việc đập phá hoặc làm hư hỏng phần kiến trúc xung quanh.
Chủ đầu tư muốn kiểm soát tiến độ và chất lượng thi công
Việc có bản vẽ chi tiết giúp chủ nhà dễ dàng đối chiếu giữa thiết kế và thực tế, phát hiện sai lệch sớm, yêu cầu khắc phục kịp thời. Đây là cơ sở rõ ràng để giám sát quá trình lắp đặt và nghiệm thu sau cùng.
Khi nào có thể không cần bản vẽ chi tiết?
Trên thực tế, nếu bạn chỉ thay thế một vài bộ cửa nhỏ với kích thước tiêu chuẩn, ở vị trí đơn giản như nhà vệ sinh hoặc phòng giặt, thì việc sử dụng bản vẽ chi tiết có thể không bắt buộc. Tuy nhiên, dù không có bản vẽ CAD chính thức, bạn vẫn nên có bản vẽ phác thảo hoặc ghi chú rõ ràng kích thước và thông số kỹ thuật để đảm bảo quá trình thi công không bị sai lệch.
6. Ai là người chịu trách nhiệm triển khai bản vẽ chi tiết cửa nhôm kính?
Việc triển khai bản vẽ chi tiết cửa nhôm kính không phải lúc nào cũng do một bên đảm nhận duy nhất, mà thường là kết quả của sự phối hợp giữa nhiều bên liên quan trong quá trình xây dựng. Dưới đây là các bên thường đảm nhiệm vai trò này:
Kiến trúc sư hoặc đơn vị thiết kế tổng thể
Trong hồ sơ thiết kế kiến trúc ban đầu, các kiến trúc sư thường thể hiện sơ bộ vị trí, kích thước và loại cửa. Tuy nhiên, bản vẽ này thường chỉ mang tính định hướng. Nếu bạn làm việc với công ty thiết kế xây dựng trọn gói, có thể yêu cầu họ triển khai thêm bản vẽ chi tiết cho từng bộ cửa dựa trên thiết kế tổng thể ban đầu.
Đơn vị thi công hoặc nhà cung cấp cửa nhôm kính
Trong đa số trường hợp, chính đơn vị thi công cửa nhôm kính sẽ là người trực tiếp triển khai bản vẽ chi tiết, bởi họ có đủ hiểu biết kỹ thuật và am hiểu từng hệ nhôm, loại kính, phụ kiện đi kèm. Họ sẽ khảo sát thực tế tại công trình, đo vẽ lại từng ô chờ và dựng bản vẽ chi tiết theo từng vị trí.
Tại Đông Phương Plus, bản vẽ chi tiết là một phần bắt buộc trong quy trình trước khi sản xuất và thi công. Chúng tôi không chỉ dựng bản vẽ đúng kỹ thuật mà còn tư vấn cho gia chủ phối hợp hài hòa giữa công năng và thẩm mỹ.
Chủ đầu tư – người quyết định cuối cùng
Dù ai là người thực hiện bản vẽ, thì vai trò của gia chủ vẫn rất quan trọng. Gia chủ cần:
- Duyệt bản vẽ trước khi thi công
 - Yêu cầu điều chỉnh nếu có điểm chưa phù hợp
 - Lưu giữ bản vẽ để sử dụng cho việc bảo trì, sửa chữa về sau
 
Việc chủ động kiểm tra và trao đổi với đơn vị thi công là cách tốt nhất để đảm bảo mọi thông tin thể hiện trên bản vẽ đều đúng với mong muốn và thực tế thi công.
Tại sao nên chọn Đông Phương Plus là đơn vị thi công cửa nhôm kính?
Đông Phương Plus là đơn vị thi công cửa nhôm kính uy tín, chuyên cung cấp giải pháp trọn gói từ tư vấn, đo đạc, dựng bản vẽ đến sản xuất và lắp đặt hoàn thiện. Chúng tôi luôn đảm bảo:
- Hỗ trợ dựng bản vẽ chi tiết cho từng công trình.
 - Thi công chính xác, đúng kỹ thuật và tiến độ.
 - Sản phẩm đồng bộ, thẩm mỹ cao, sử dụng vật tư chính hãng.
 - Chính sách bảo hành minh bạch, đồng hành dài lâu với khách hàng.
 
Câu hỏi thường gặp (FAQ)
Câu hỏi 1: Nếu thi công cửa nhôm kính mà không có bản vẽ chi tiết thì sao? Khả năng cao sẽ xảy ra sai lệch về kích thước, sai chủng loại hoặc lắp đặt không đồng bộ, từ đó phát sinh thêm chi phí sửa chữa và làm trễ tiến độ.
Câu hỏi 2: Ai là người chịu trách nhiệm làm bản vẽ chi tiết? Tuỳ vào từng công trình, bản vẽ có thể do kiến trúc sư, đơn vị thi công cửa hoặc phối hợp cả hai bên thực hiện. Đông Phương Plus hỗ trợ dựng bản vẽ chi tiết miễn phí cho khách hàng.
Câu hỏi 3: Làm bản vẽ chi tiết có mất nhiều thời gian không? Thông thường, thời gian triển khai bản vẽ chỉ từ 1–3 ngày, tùy vào số lượng và độ phức tạp của hạng mục cửa.
Bản vẽ chi tiết không chỉ giúp thi công cửa nhôm kính chính xác và đồng bộ, mà còn là công cụ quản lý tiến độ, kiểm soát chất lượng và tránh rủi ro phát sinh. Đặc biệt với các gia chủ lần đầu xây nhà, việc có bản vẽ rõ ràng từ đầu là yếu tố quan trọng để đảm bảo công trình hoàn thiện đúng như mong muốn.
Nếu bạn đang có nhu cầu lắp đặt hệ cửa nhôm kính cho công trình của mình, đừng ngần ngại liên hệ Đông Phương Plus – chúng tôi luôn sẵn sàng đồng hành, tư vấn tận tâm và triển khai bản vẽ chi tiết hoàn toàn miễn phí.
Thông tin liên hệ:
CÔNG TY CỔ PHẦN ĐÔNG PHƯƠNG PLUS
Văn phòng: The Sun Avenue - 28 Mai Chí Thọ, P An Phú, Tp Thủ Đức, TP HCM
Nhà xưởng: 40 Trần Thị Do, P Hiệp Thành, Q12
Hotline: 0946 422 559
Email: info@dongphuongnk.com






